Overview
This attractive 4 bedroom 2.5 bathroom 2 storey vacation villa features a large private west facing pool & spacious pool deck with conservation woodland views, wireless high-speed internet access, fully air-conditioned and with LCD TV’s throughout.
Seasonal Rental Rates
| Year | Low | Mid | High | Peak | Pool Heating |
|---|---|---|---|---|---|
| 2026 | £186 / $250 | £194 / $262 | £203 / $274 | £213 / $287 | £30 / $38 |
| 2027 | £194 / $262 | £203 / $274 | £213 / $287 | £222 / $299 | £32 / $40 |
| 2028 | £194 / $262 | £203 / $274 | £213 / $287 | £222 / $299 | £32 / $40 |
Above rental rates include all local taxes. Pool heating recommended between October to April. For stays of less than 7 nights, will incur an additional cleaning fee included in quoted online price. 25% deposit required at booking with full payment made 10 weeks prior to stay
To read the full terms and conditions, please click here.
Florida Licence # DWE6313***full licence number is available on request
Seasons Explained
Our seasonal rates are set based on public and school holidays to suit both UK and USA dates - please see our yearly calendars by clicking Seasonal Rates Explanation, which will open a new page showing which seasons apply to which dates.
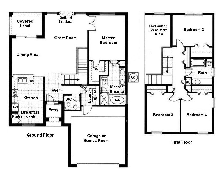
Ground Floor
Introduction
This attractively presented villa offers you the following features:
- 1,982 sq ft of luxurious fully air-conditioned living space
- Sleeps up to 8 adults/children 4 bedrooms & 2.5 bathrooms including:
- 1 Master suite with a king-sized bed & LCD cable TV
- 1 Double bedroom with a queen-sized bed & LCD cable TV
- 2 Twin bedrooms, both with LCD cable TV's
- Great room with cathedral ceiling and views onto the pool deck
- Cabinet mounted LCD cable TV in great room
- Fully equipped luxury kitchen with refrigerator/ice & water dispenser, microwave & dishwasher
- Breakfast nook with table & chairs for 4 and views onto the pool deck
- Breakfast Bar seats an additional 2 persons on bar stools
- Dining room adjacent to kitchen & great room with seating for 6
- LCD TV's in all bedrooms
- Covered lanai with patio table & 4 chairs plus ceiling fan
- 23ft x 13ft west facing swimming pool with conservation woodland views
- Privacy fencing to both sides of the pool ensures maximum poolside privacy
- 4 Sun loungers (2 are reclining chairs with footstools)
- Pool heat is available at an extra charge.
- Gas BBQ with utensils available to hire from the management company
- Utility room with washer, drier, iron & ironing board
- Baby equipment available at extra cost on request
- High-Speed Wireless Internet access throughout villa & pool deck
- All linens, towels, pool towels, and hairdryers supplied
- Locally managed and maintained - 24-hour emergency service
Entrance Foyer
As you first enter the villa, you first see the spacious attractively furnished great room with a cathedral ceiling directly in front of you. As you venture in you will see the kitchen and dining area located to your left. To your right before the stairs, you will find the laundry room and cloakroom.
Great Room
The comfortably furnished room with a cathedral ceiling and tall windows on either side of a fireplace (colder months) - windows look out onto the pool deck.
There is ample seating for you to relax and watch the cabinet-mounted LCD cable TV.
Dining Area
The formal dining area is located adjacent to the great room & kitchen and has a large glass-topped table with seating for up to 6 diners and is beautifully set out for those special dining occasions.
Kitchen
The kitchen with quality stainless steel appliances has all the amenities including a dishwasher, stove with oven, microwave, refrigerator & freezer with automatic water and ice dispenser, waste disposal, toaster, blender, electric kettle, and coffeemaker. Also, we provide every small utensil imaginable, plenty of crockery, cutlery and more.
The breakfast bar with 2 bar stools is ideal for enjoying breakfast or light snacks or just socialising with whoever is preparing a meal in the kitchen.
Breakfast Nook
The breakfast nook in the kitchen looks out onto the front garden and provides a round glass-topped table with 4 chairs.
Laundry Room
The laundry room provides a washing machine, tumble dryer, ironing board, and iron for your convenience - leave space in your luggage for all those cheap designer clothes you are likely to purchase at the excellent designer outlet malls !!
Cloakroom
Located next to the laundry room, on the ground floor features a single vanity unit and WC.
Master Bedroom #1
The large master bedroom accessible via double doors from the corner of the great room offers wonderful views onto the pool deck and has been furnished with a king-sized bed, matching nightstands, a chest of drawers with a mirror above, a walk-in wardrobe, LCD cable TV, ceiling fan, and an alarm clock.
The connecting spacious ensuite bathroom has a Roman bath, walk-in shower, his & hers sinks and WC. We also provide a hairdryer.
Pool & Deck
The large pool with west facing deck has attractive and tranquil conservation woodland views. Privacy fencing to both sides ensures maximum privacy out by the pool.
We have provided 4 sun loungers (2 of which are reclining chairs with footstools) for your sunbathing comfort and a patio table with 4 chairs under the shady covered lanai with a ceiling fan.
To prevent small children from wandering into the unsupervised pool there are pool-door alarms so you know your children are safe.
Rental Gas BBQ
For the ultimate in alfresco dining experience, we can provide a gas BBQ for $85/week - please request this in the booking form and we will ensure a clean BBQ with tools and a full gas bottle is delivered to the villa.
First Floor
Twin Bedroom #2
This bedroom with views over the pool deck comes equipped with 2 x twin sized beds with a matching shared nightstand and a chest of drawers with a mirror above. Within the room, we also have an LCD cable TV, ceiling fan and a large built-in wardrobe.
Twin Bedroom #3
This bedroom with views over the front gardens comes equipped with 2 x twin sized beds with a matching shared nightstand and a chest of drawers with a mirror above. Within the room, we also have an LCD cable TV, ceiling fan and a large built-in wardrobe.
Queen Bedroom #4
This bedroom with dual aspect views over the front gardens comes equipped with a queen-sized bed with a matching nightstand and a chest of drawers with a mirror above. Within the room, we also have an LCD cable TV, ceiling fan and a large built-in wardrobe
Family Bathroom #2
This shared bathroom at the top of the stairs and is shared by the upstairs bedrooms, features a single vanity unit, bath with shower over and WC.
WiFi Internet Access
We provide free high-speed DSL WiFi internet access throughout the villa and pool deck. Just bring your own laptop, tablet or smartphone to connect to the internet and email.
Free US long distance & local phone calls.
Baby Equipment Rental
We can provide rental baby equipment such as a cot (crib) & highchair. Please request these items in the booking form if required and the owner will advise you of the rental cost based on the length of your stay.
Please note that we do not provide bedding for the cot (crib) due to strict Florida hygiene laws, which isn't normally an issue as most parents usually prefer to bring their own.
Towels & Linens
All towels and linens are provided although we do ask that no linens be removed from the house. If you plan on travelling to the beach on either coastline, please bring your own beach towels or purchase them locally for very little money.
Keyless Entry
No need to get stressed on arrival - our villa has a keyless entry system, so if you are delayed at the airport, you can get into the villa any time of the day or night - no need to travel miles out of your way in unfamiliar territory to collect keys - just pull up on the drive, tap in the numerical code provided and your holiday can begin !!
Monitored Alarm System
Our home features a fully monitored alarm & smoke detector system for your security and peace of mind.
Rental Damage Insurance
In place of a security deposit, we charge a one-off $65 non-refundable insurance premium in addition to the rental costs quoted on the website. On confirming a booking we will add the premium to the money owed and advise of this by email.
Responsive Management Company
Our villa is maintained by a very responsive and friendly management company located close to resort. This ensures that all our guests receive the most efficient, friendly and personal service 24/7.
Distance to Berry Town Center Shops & Restaurants
It's a 20-minute walk (or 3 mins in a car) to Berry Town Center where you will find a Publix with a gas station, Applebee's restaurant, IHOP restaurant, Chinese takeaway, English bar & fish & chips shop, Irish bar, Pizzeria, Thai & Japanese restaurants, bank and more...
Across the road from Berry Town is a large CVS Pharmacy & Dollar discount store.
There is also a 24hr WalMart Superstore just 10 minutes drive up the US27, or if you travel 13 miles south on the US27 you will find an ALDI store.
On the US192 you will find a great selection of popular restaurants within a 15-minute drive including the excellent Manny's Chophouse, Olive Garden, Bahama Breeze, Millers Alehouse, Texas Roadhouse, Joe's Crab Shack, Carrabba's, TGI Fridays, Bonefish Grill and loads more...
Floor Plan

